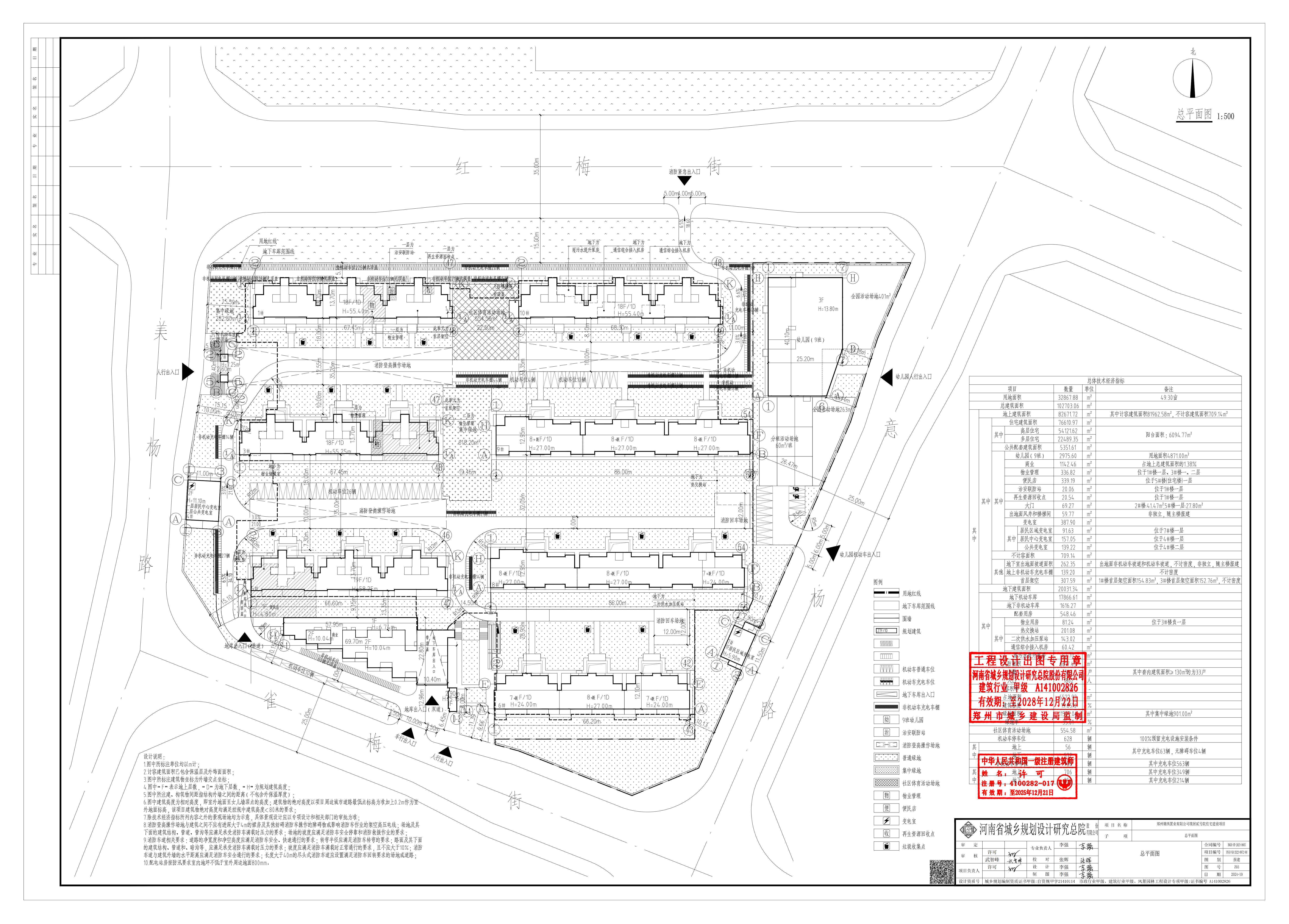
项目名称: | 郑州锦西置业有限公司璞居贰号院住宅建设项目 |
公示公告类型: | 其他 |
建设/用地单位: | 郑州锦西置业有限公司 |
用地类别: | 城市建设用地 |
用地位置: | 高新区意杨路西、红梅街南 |
公示期限: | 10个工作日 |
公示日期: | 2025年7月29日 |
截止日期: | 2025年8月11日 |
经办处室单位: | 郑州市自然资源和规划局高新分局 |
咨询电话: | 0371-67998510 |
附加说明: | 查询详细内容,请出示身份证明,到我局办理相关手续后查询。依据《城乡规划法》、《行政许可法》等有关法律法规,特此公示。如有意见和建议, 请于公示时间内向我局反馈。 |




效果图仅为展示本地块,周边地块仅供参考