|
项目名称 |
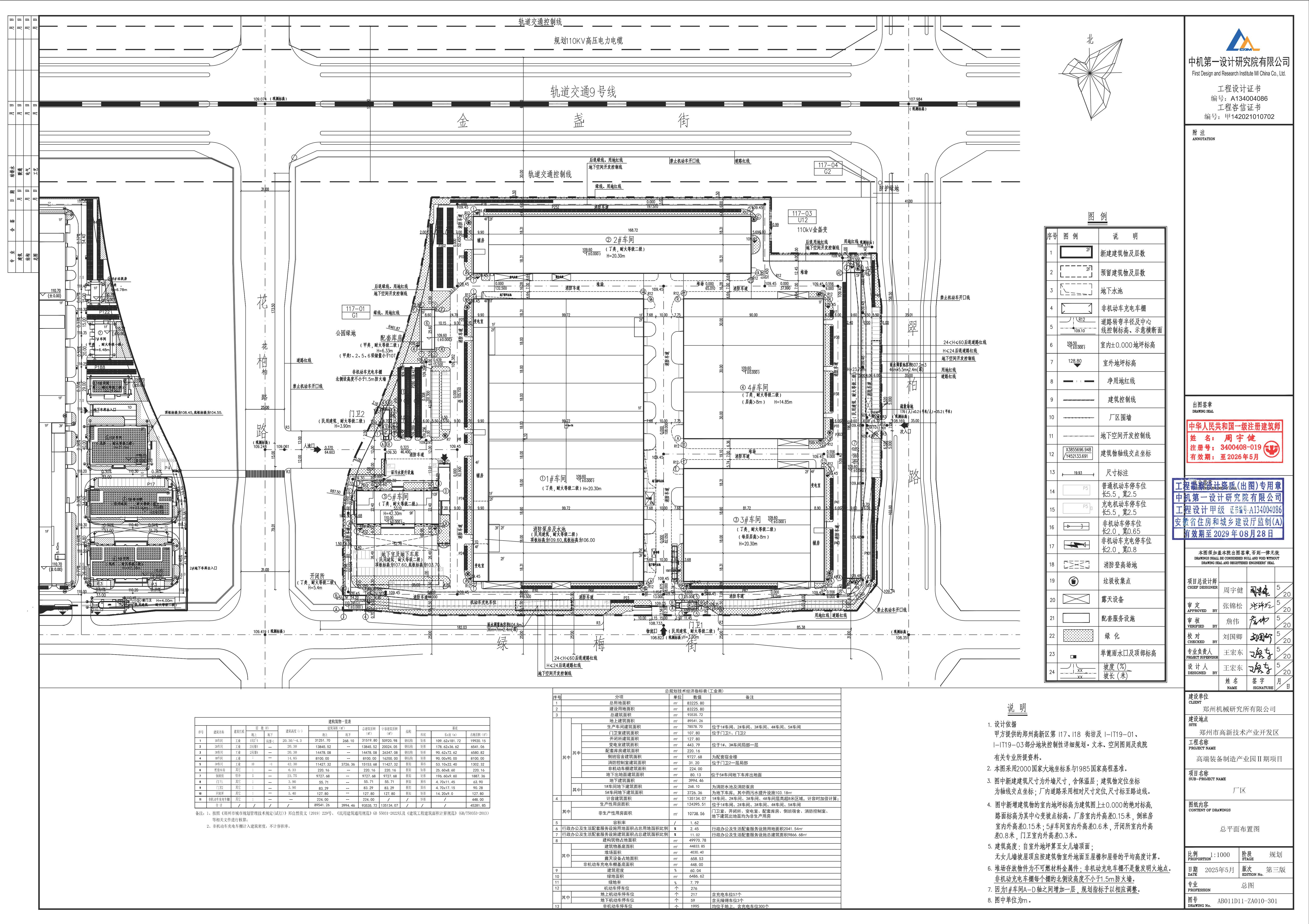
高端装备制造产业园Ⅱ期总平面图方案调整 |
||
|
建设单位 |
中国机械总院集团郑州机械研究所有限公司 |
建设地点 |
高新区绿梅街36号 |
|
用地面积 |
83225.80平方米 |
总建筑面积 |
93535.72平方米 |
|
绿地率 |
7.79 % |
建筑密度 |
60.04
% |
|
容积率 |
1.62 |
停车位 |
276辆 |
|
咨询电话 |
0371-67998510 |
||
|
用地分类 |
工业用地 |
||
|
公告期限 |
10日 |
||
|
公告日期 |
2025年8月1日至2025年8月14日 |
||
|
附图 |
调整前总平面图、调整后总平面图 |
||
|
备注 |
本次主要调整总平面设计方案,调整内容如下: 1、调整前总建筑面积98730.50㎡,调整后总建筑面积93535.72㎡。 2、调整前1#车间1层,建筑面积26753.78㎡;调整后1#车间1层局部2层,建筑面积31519.80㎡; 3、调整前4#车间建筑面积18060.80㎡,调整后建筑面积8100㎡。 4、调整前容积率1.74,调整后容积率1.62; 5、调整前建筑密度60.67%,调整后建筑密度60.04%; 6、调整前行政办公及生活配套服务设施建筑面积占总建筑面积比例为10.41%,调整后行政办公及生活配套服务设施建筑面积占总建筑面积比例为11.02%。 7、该项目其他数据均与原审批一致,没有发生变化。 具体拟调整内容详见本公告所示拟调整前总平面图、拟调整后总平面图。相关利害关系人有权发表意见或建议,如有意见或建议,请于公告期内向郑州市自然资源和规划局高新分局书面反馈,邮箱zzgxqghj@qq.com。 |
||
调整前总平面图

调整后总平面图
