郑州政务服务网
你所在的位置: 首页 信息公开 规划公示 其他 正文
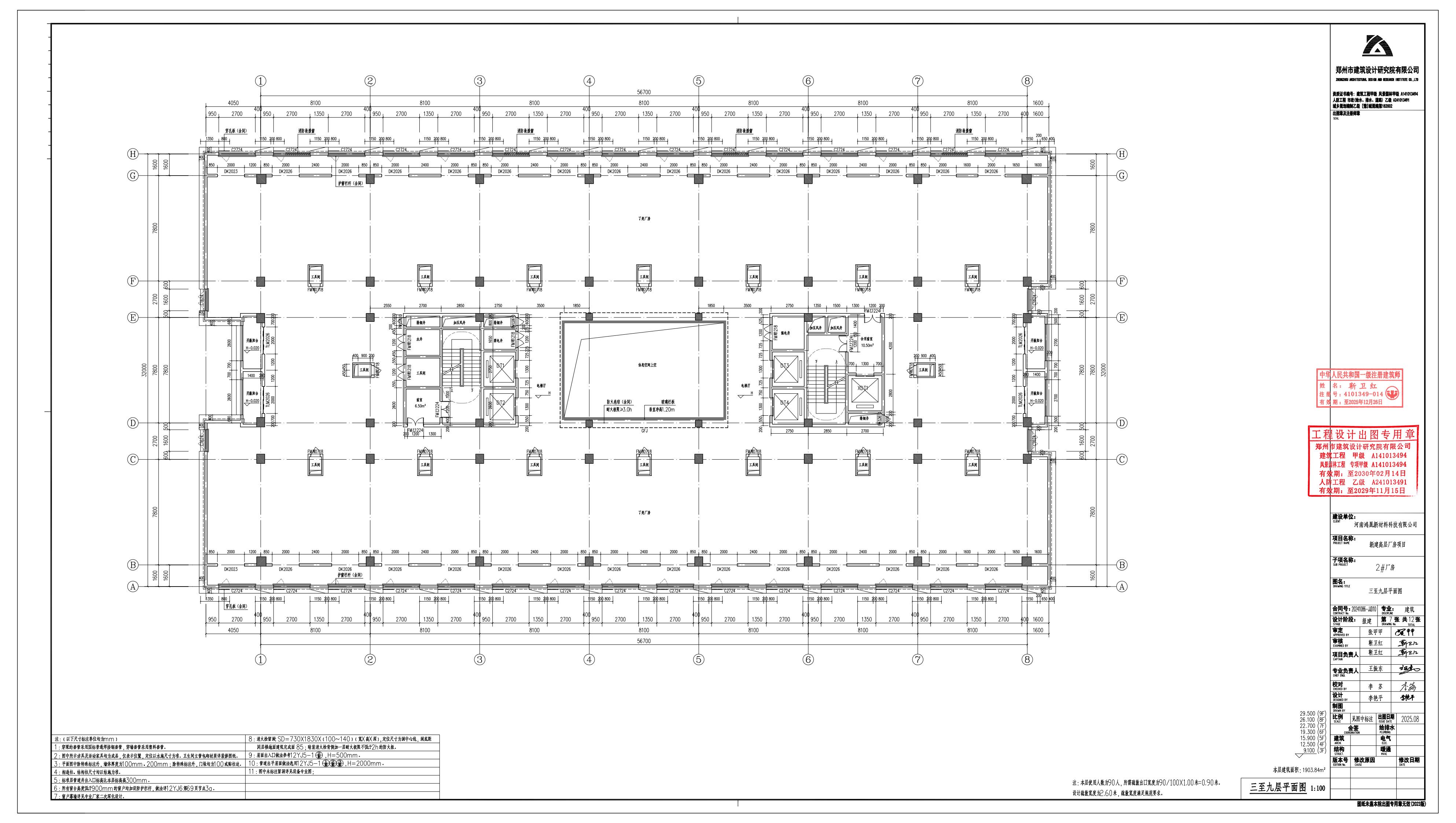
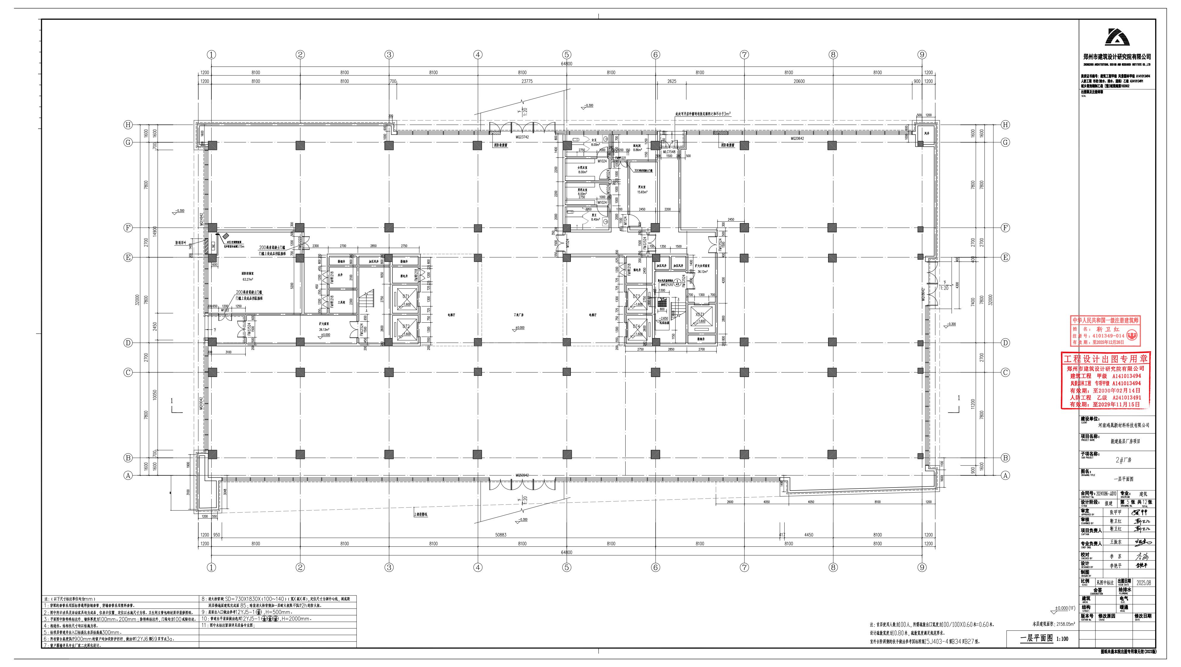
新建高层厂房项目
来源:本站  时间:2025-08-19 17:35  

项目名称:

新建高层厂房项目2#厂房、11#设备间)

公示公告类型:

其他

建设/用地单位:

河南鸿晟新材料科技有限公司

用地类别:

城市建设用地

用地位置:

高新区金柏路169号

公示期限:

10个工作日

公示日期:

2025820

截止日期:

202592

经办处室单位:

郑州市自然资源和规划局高新分局

咨询电话:

0371-67998510

附加说明:

查询详细内容,请出示身份证明,到我局办理相关手续后查询。依据《城乡规划法》、《行政许可法》等有关法律法规,特此公示。如有意见和建议,请于公示时间内向我局反馈









效果图仅为展示本地块,周边地块仅供参考




打印此文 关闭窗口