郑州政务服务网
你所在的位置: 首页 信息公开 规划公示 其他 正文
超硬3C材料厂房扩建项目总平面图方案调整
来源:本站  时间:2025-09-19 16:08  

项目名称

超硬3C材料厂房扩建项目总平面图方案调整

建设单位

河南明晟新材料科技有限公司

建设地点

高新区金盏街北、金柏路西

用地面积

183026.64平方米

总建筑面积

180396.87平方米

绿地率

6.06%

建筑密度

72.19%

容积率

1.54

停车位

526

咨询电话

0371-67998510

用地分类

工业用地

公告期限

10

公告日期

2025922日至20251010

附图

调整前总平图、调整前效果图、调整后总平图、调整后效果图

备注

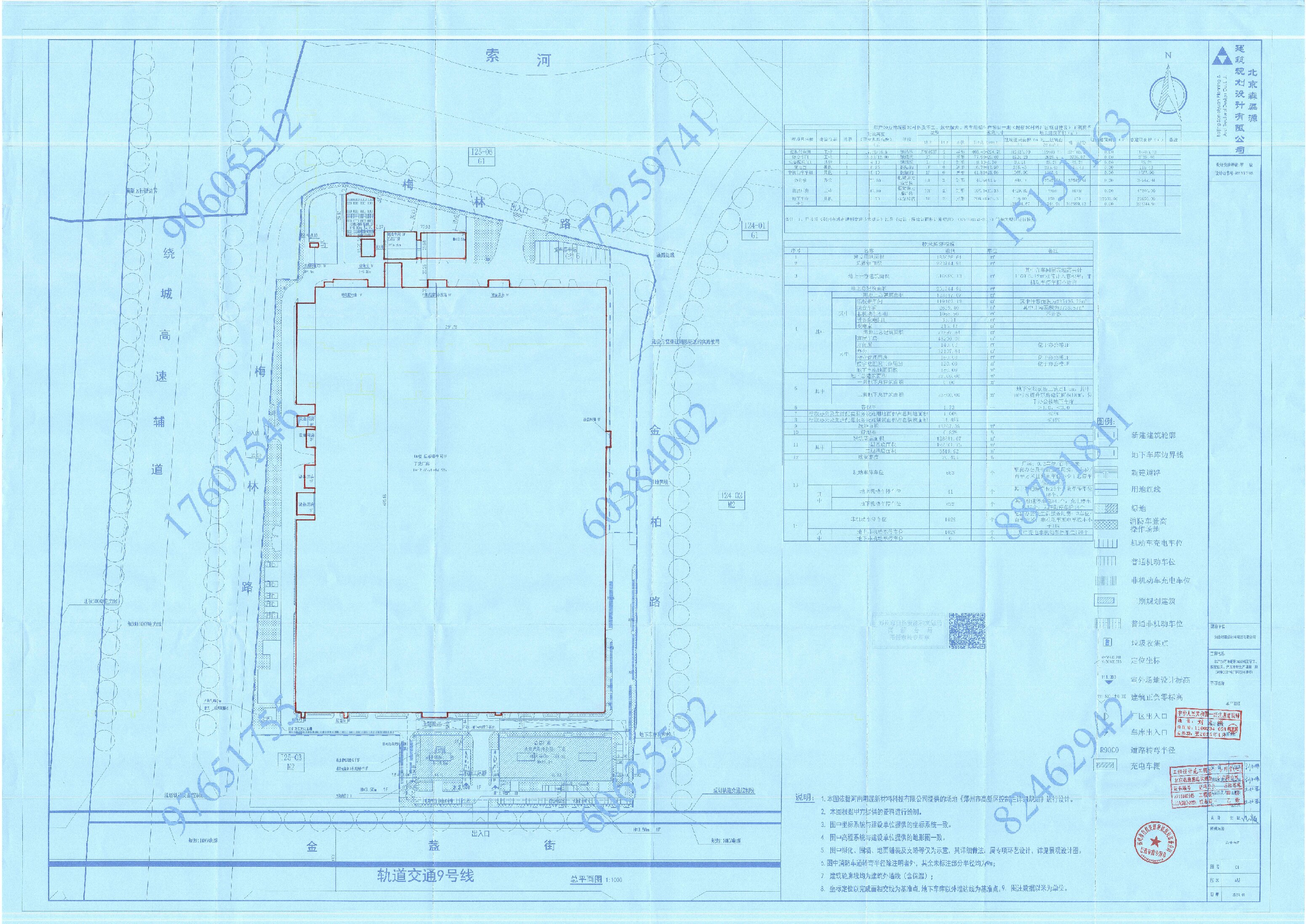
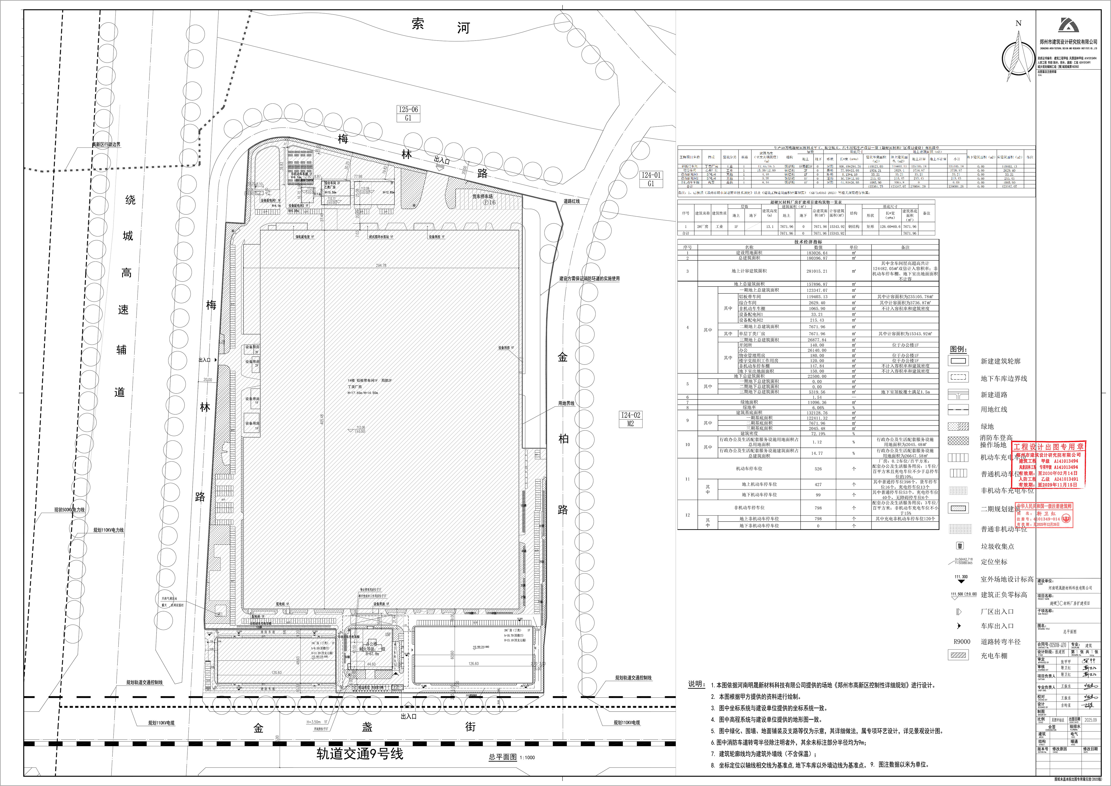
本次主要调整总平面设计方案,调整内容如下:

1、拟取消高层厂房、建筑面积45200㎡;,新建2#厂房1层,建筑面积7671.93㎡;

2、调整前办公楼为地上18层、建筑面积为31960㎡,调整后办公楼为地上15层,建筑面积为26140㎡;

3、  调整前地下建筑面积为22500㎡,调整后地下建筑面积为5319.56㎡。

4、  调整前容积率为1.73,调整后容积率为1.54

5、  调整前建筑密度为70.44%,调整后建筑密度为72.19%

6、调整前绿地率为6.83%,调整后绿地率为6.06%

7、  调整前机动车停车位为663个,调整后机动车停车位为526个。

8、调整前非机动车停车位为1029个,调整后非机动车停车位为798个。

9、该项目其他数据均与原规划审批一致,没有发生变化。

具体拟调整内容详见本公告所示拟调整前总平面图、调整前效果图、拟调整后总平面图、调整后效果图。相关利害关系人有权发表意见或建议,如有意见或建议,请于公告期内向郑州市自然资源和规划局高新分局书面反馈,邮箱zzgxqghj@qq.com

调整前



调整后



效果图仅展示本地块,周边地块仅供参考。



打印此文 关闭窗口