|
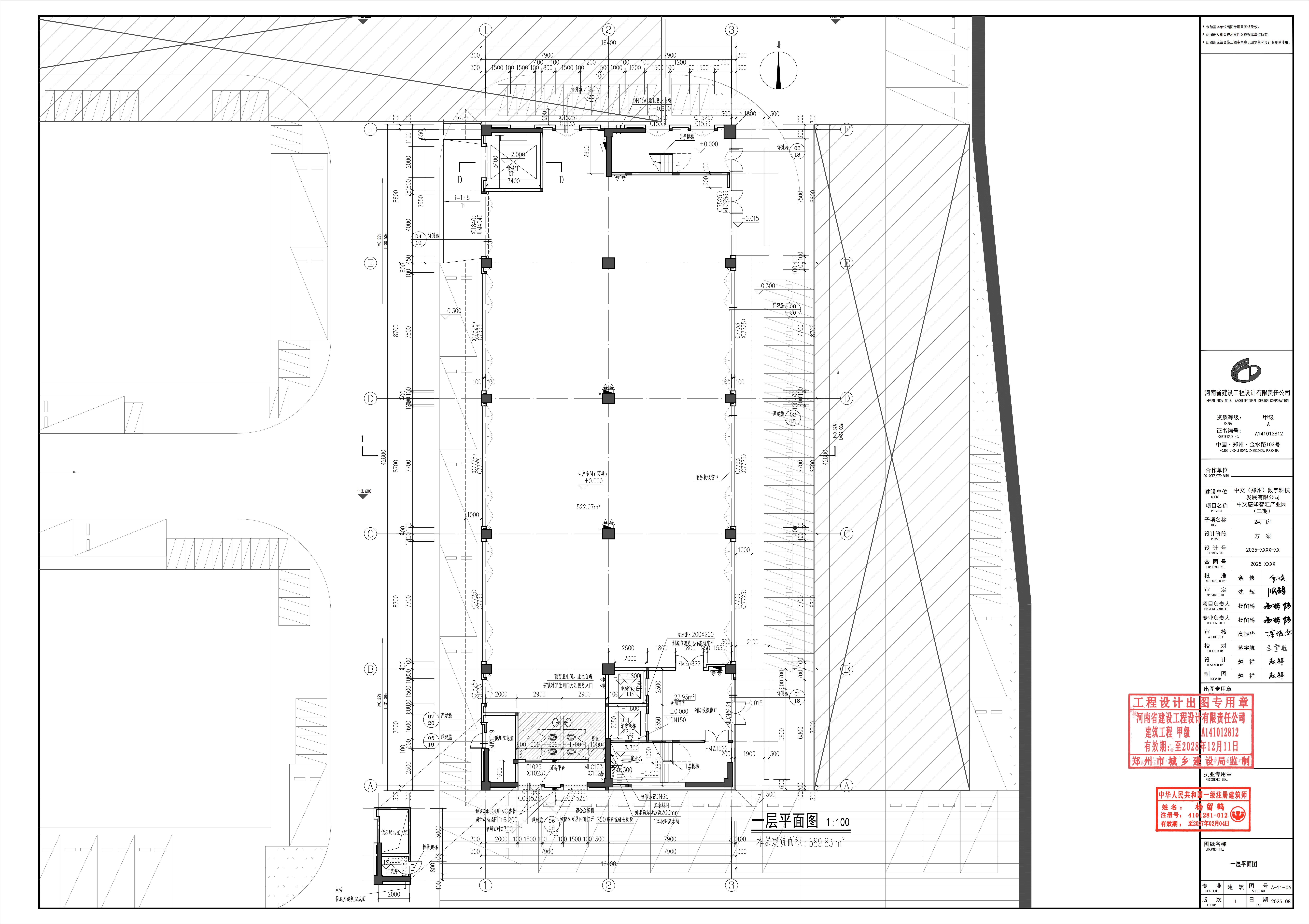
项目名称: |
中交感知智汇产业园(二期) |
|
公示公告类型: |
其他 |
|
建设/用地单位: |
中交(郑州)数字科技发展有限公司 |
|
用地类别: |
城市建设用地 |
|
用地位置: |
高新区杜英街南、银兰路西 |
|
公示期限: |
10个工作日 |
|
公示日期: |
2025年10月31日 |
|
截止日期: |
2025年11月13日 |
|
经办处室单位: |
郑州市自然资源和规划局高新分局 |
|
咨询电话: |
0371-67998510 |
|
附加说明: |
查询详细内容,请出示身份证明,到我局办理相关手续后查询。依据《城乡规划法》、《行政许可法》等有关法律法规,特此公示。如有意见和建议,请于公示时间内向我局反馈。 |







效果图仅为展示本地块,周边地块仅供参考