|
项目名称 |
|||
|
建设单位 |
郑州国创电子有限公司 |
建设地点 |
莲花街南、红杉路东 |
|
用地面积 |
57289.26平方米 |
总建筑面积 |
138704.89平方米 |
|
绿地率 |
4.87% |
建筑密度 |
50.76% |
|
容积率 |
2.54 |
停车位 |
362辆 |
|
咨询电话 |
0371-67998510 |
||
|
用地分类 |
工业用地 |
||
|
公告期限 |
10日 |
||
|
公告日期 |
2025年12月19日至2026年1月4日 |
||
|
附图 |
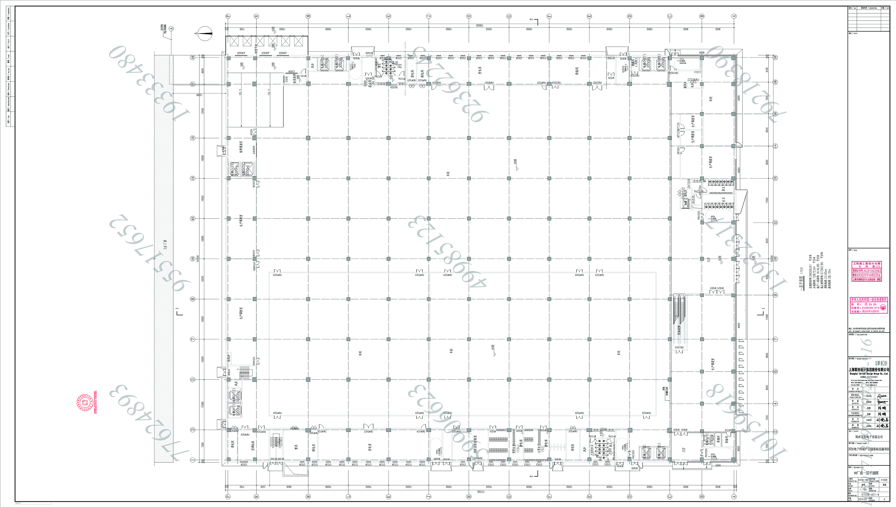
1#厂房调整前后设计说明、一层、五层平面图 |
||
|
备注 |
本次主要调整1#厂房,调整内容如下: 1、1#厂房普通货梯HT1、HT2、HT3、HT4、HT7共5部货梯二次装修进行安装, 2、该项目其他数据均与原审批一致,没有发生变化。 具体拟调整内容详见本公告所示1#厂房调整前后设计说明、一层、五层平面图。相关利害关系人有权发表意见或建议,如有意见或建议,请于公告期内向郑州市自然资源和规划局高新分局书面反馈,邮箱zzgxqghj@qq.com。 |
||
调整前



调整后


