|
项目名称: |
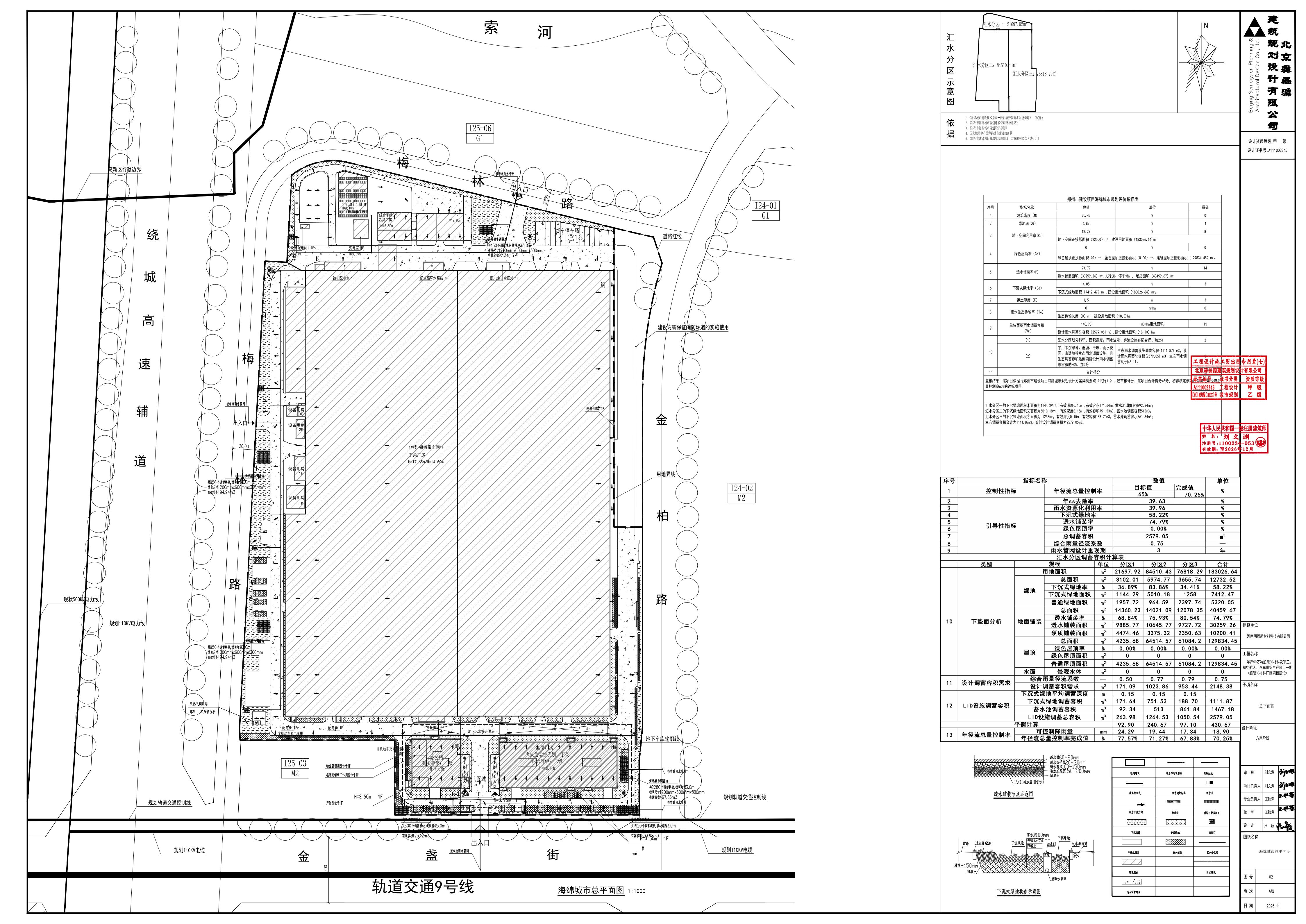
年产50万吨超硬3C材料及军工、航空航天、汽车用铝生产项目一期(超硬3C材料厂区项目建设)(铝板带车间、综合车间、设备配电间1、变电室、非机动车车棚) |
|
公示公告类型: |
其他 |
|
建设/用地单位: |
河南明晟新材料科技有限公司 |
|
用地类别: |
城市建设用地 |
|
用地位置: |
高新区金柏路西、金盏街北 |
|
公示期限: |
10个工作日 |
|
公示日期: |
2025年12月26日 |
|
截止日期: |
2026年1月9日 |
|
经办处室单位: |
郑州市自然资源和规划局高新分局 |
|
咨询电话: |
0371-67998510 |
|
附加说明: |
查询详细内容,请出示身份证明,到我局办理相关手续后查询。依据《城乡规划法》、《行政许可法》等有关法律法规,特此公示。如有意见和建议,请于公示时间内向我局反馈。 |







效果图仅为展示本地块,周边地块仅供参考