项目名称: | 城发高新生物经济产业园 |
公示公告类型: | 其他 |
建设/用地单位: | 郑州城发高科发展有限公司 |
用地类别: | 城市建设用地 |
用地位置: | 高新区创新大道西、梧桐街北 |
公示期限: | 10个工作日 |
公示日期: | 2026年2月11日 |
截止日期: | 2026年3月2日 |
经办处室单位: | 郑州市自然资源和规划局高新分局 |
咨询电话: | 0371-67998510 |
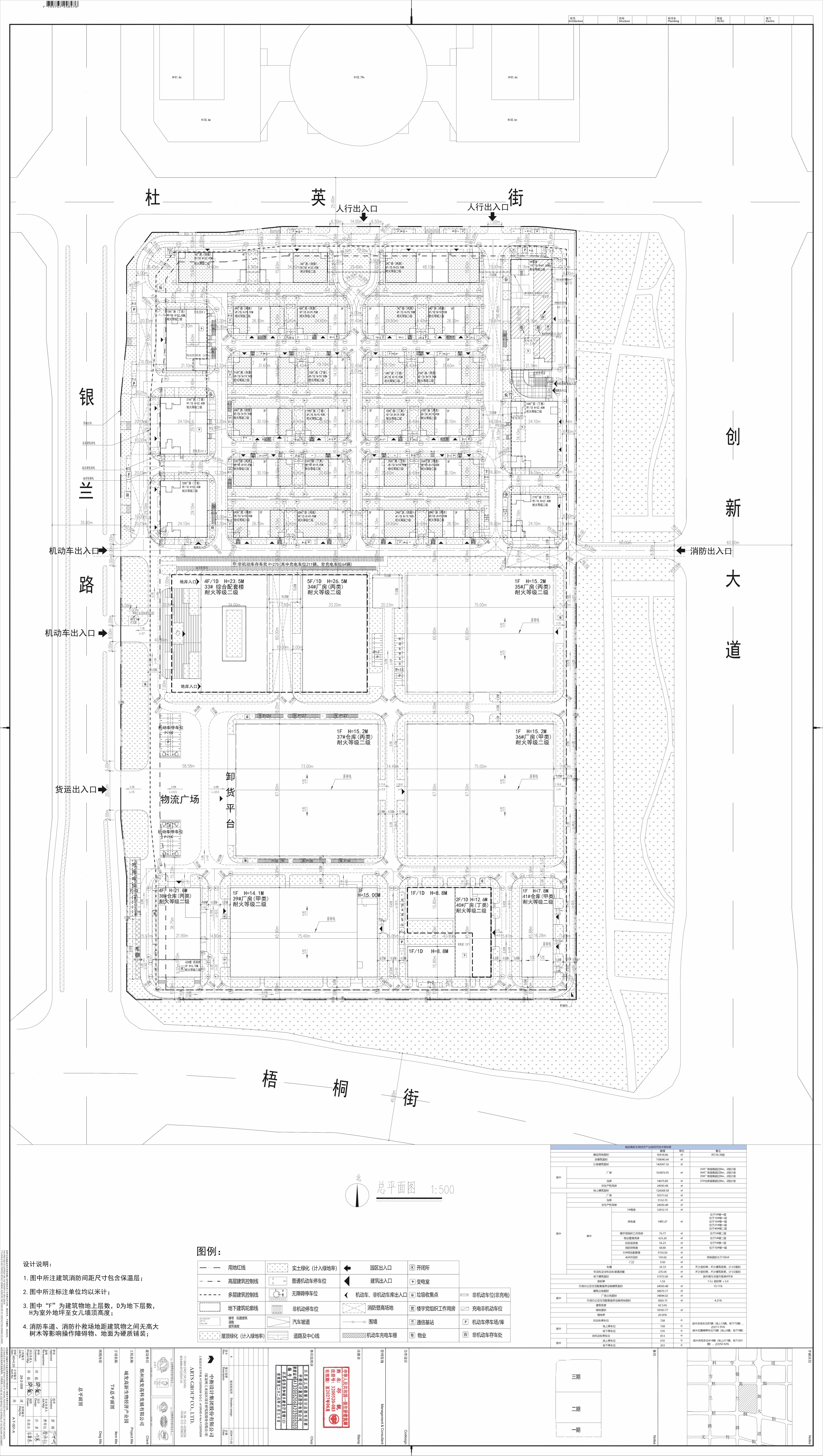
调整内容: | 总平面图:经济技术指标中,物业管理用房面积调整,调整前物业管理用房107.68㎡,调整后物业管理用房633.26㎡。宿舍部分面积调整,调整前12937.73㎡,调整后宿舍部分12412.15㎡。
5#宿舍楼单体调整:单体建筑面积未发生改变,二层物业管理用房面积调整,调整前物业管理用房107.68㎡,调整后物业管理用房633.26㎡。
|
备注: | 其它未尽事项,详见图纸。 |
附图: | 调整前总平面图、调整后总平面图、5#宿舍楼调整前单体图、调整后单体图 |
附加说明: | 查询详细内容,请出示身份证明,到我局办理相关手续后查询。依据《城乡规划法》、《行政许可法》等有关法律法规,特此公示。如有意见和建议,请于公示时间内书面向我局反馈。 |
调整前总图:

调整后总图:

5#宿舍楼调整前单体图:

5#宿舍楼调整后单体图:
