项目名称: | 郑州机械研究所有限公司高端装备制造产业园II期 |
公示公告类型: | 其他 |
建设/用地单位: | 中国机械总院集团郑州机械研究所有限公司 |
用地类别: | 城市建设用地 |
用地位置: | 高新区花柏路东、金盏街南、翠柏路西、绿梅街北 |
公示期限: | 10个工作日 |
公示日期: | 2026年3月6日 |
截止日期: | 2026年3月19日 |
经办处室单位: | 郑州市自然资源和规划局高新分局 |
经办人: | 蒋振明 |
咨询电话: | 0371-67998510 |
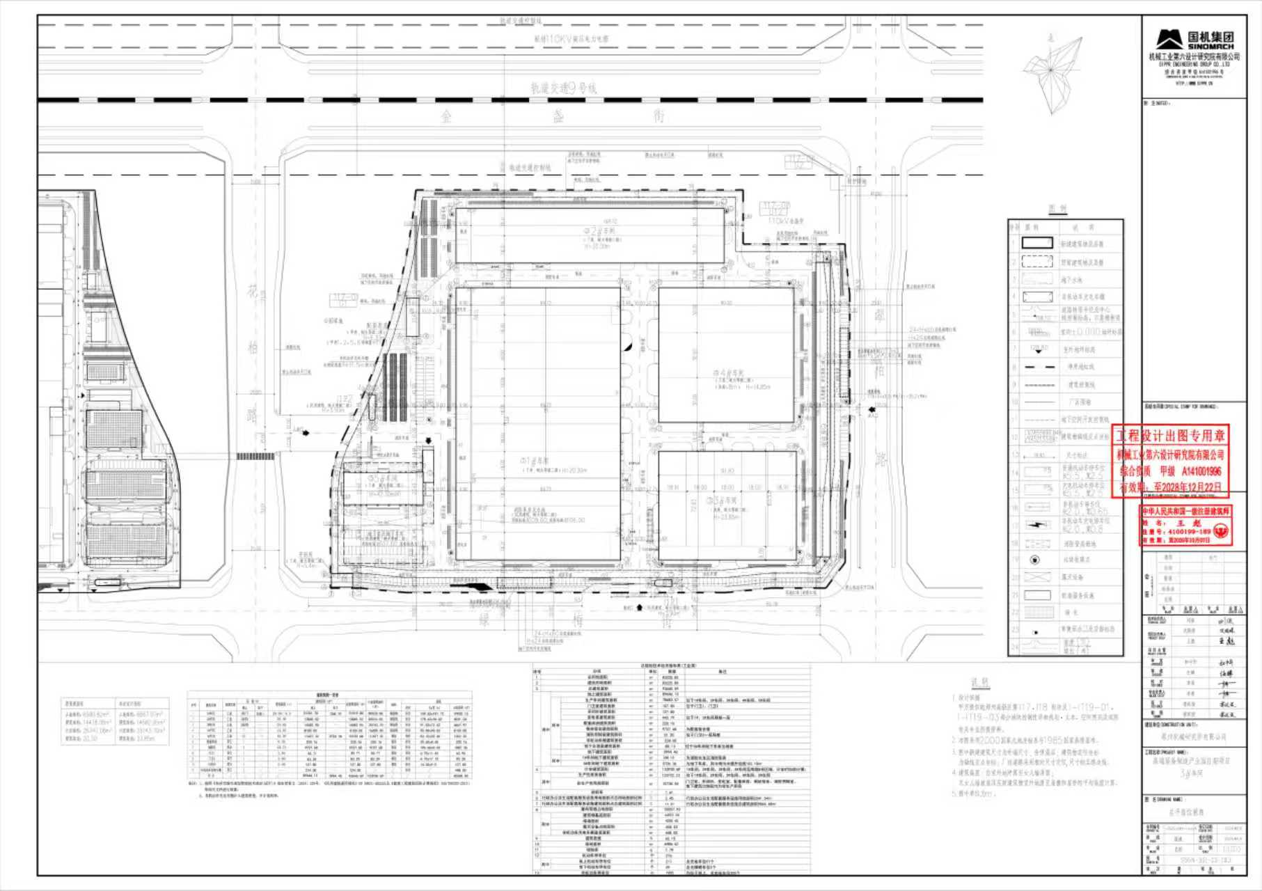
调整内容: | 调整内容: 总平面图: 1、调整前总建筑面积93535.72平方米,调整后总建筑面积93640.59平方米;2、调整前计容建筑面积135134.07平方米,调整后总建筑面积133930.69平方米; 3、调整前容积率1.62,调整后容积率1.61; 4、调整前建筑密度60.04%,调整后建筑密度60.15%; 5、调整前建构筑物占地面积49970.78平方米,调整后建构筑物占地面积50057.93平方米; 6、调整前行政办公及生活配套服务设施建筑面积占总建筑面积比例为11.02%,调整后行政办公及生活配套服务设施建筑面积占总建筑面积比例为11.01%。 3#车间: 1、调整前建筑面积14478.08㎡,调整后建筑面积14582.95㎡。 2、调整前建筑占地面积6580.82㎡,调整后建筑占地面积6667.97㎡。 3、调整前计容面积26347.08㎡,调整后计容面积25143.70㎡。 4、调整前建筑基底尺寸为90.62m×72.62m,调整后建筑基底尺寸为91.82m×72.62m。 5、调整前建筑高度20.30m,调整后建筑高度23.85m。 6、调整前3#车间2层,辅房4层,为满足新增大型生产设备的安装高度要求、行车吊装作业需求及生产配套需求,调整后3#车间2层局部1层,辅房5层。
|
备注: | 其他调整内容及未尽事项,详见公示图纸。 |
附图: | 调整前总平面图、调整后总平面图、调整前鸟瞰图、调整后鸟瞰图 |
附加说明: | 查询详细内容,请出示身份证明,到我局办理相关手续后查询。依据《城乡规划法》、《行政许可法》等有关法律法规,特此公示。如有意见和建议,请于公示时间内向我局反馈。 |
调整前总平面图

调整后总平面图

调整前鸟瞰图

调整后鸟瞰图

效果图仅为展示本地块,周边地块仅供参考