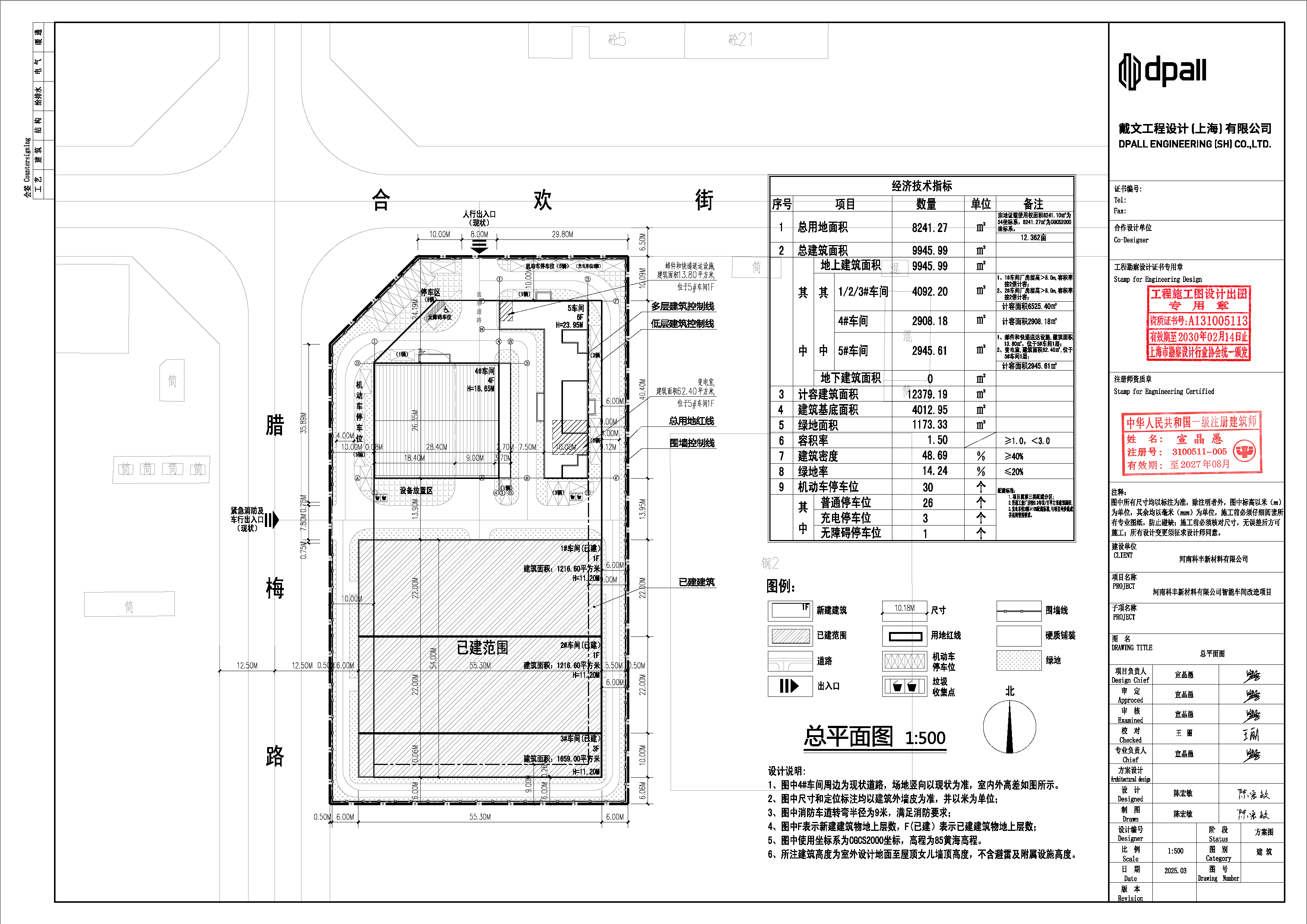
项目名称: | 河南科丰新材料有限公司智能车间改造项目 |
公示公告类型: | 其他 |
建设/用地单位: | 河南科丰新材料有限公司 |
用地类别: | 城市建设用地 |
用地位置: | 高新区合欢街南,腊梅路东 |
公示期限: | 10个工作日 |
公示日期: | 2026年3月17日 |
截止日期: | 2026年3月30日 |
经办处室单位: | 郑州市自然资源和规划局高新分局 |
经办人: | 王浩、李贺 |
咨询电话: | 0371-67998510 |
调整内容: | 本次主要调整内容: 1、调整前总建筑面积9699.2㎡,调整后总建筑面积9945.99㎡。 2、调整前容积率1.16,调整后容积率1.50。 3、调整前建筑密度46.8%,调整后建筑密度48.69%。 4、调整前绿地率31.5%,调整后绿地率14.24%。 5、调整前基底面积3920.7㎡,调整后基底面积4012.95㎡。 6、调整后取消北侧、西侧入口两处传达室。 7、调整后取消二期科研楼子项,增加4#车间、5#车间。 |
备注 | 其他调整内容及未尽事项,详见公示图纸。 |
附图: | 调整前总平面图、调整后总平面图 |
附加说明: | 查询详细内容,请出示身份证明,到我局办理相关手续后查询。依据《城乡规划法》、《行政许可法》等有关法律法规,特此公示。如有意见和建议,请于公示时间内书面向我局反馈。 |
调整前总平面图:
调整后总平面图:

调整后鸟瞰图:

效果图仅为展示本地块,周边地块仅供参考