项目名称: | 联东U谷·郑州梧桐科技智造产业园项目10#工业厂房单体方案调整公告 |
公示公告类型: | 其他 |
建设/用地单位: | 郑州联东金函实业有限公司 |
用地类别: | 城市建设用地 |
用地位置: | 高新区紫竹路西、梧桐街北 |
公示期限: | 10个工作日 |
公示日期: | 2026年3月20日 |
截止日期: | 2026年4月2日 |
经办处室单位: | 郑州市自然资源和规划局高新分局 |
咨询电话: | 0371-67998510 |
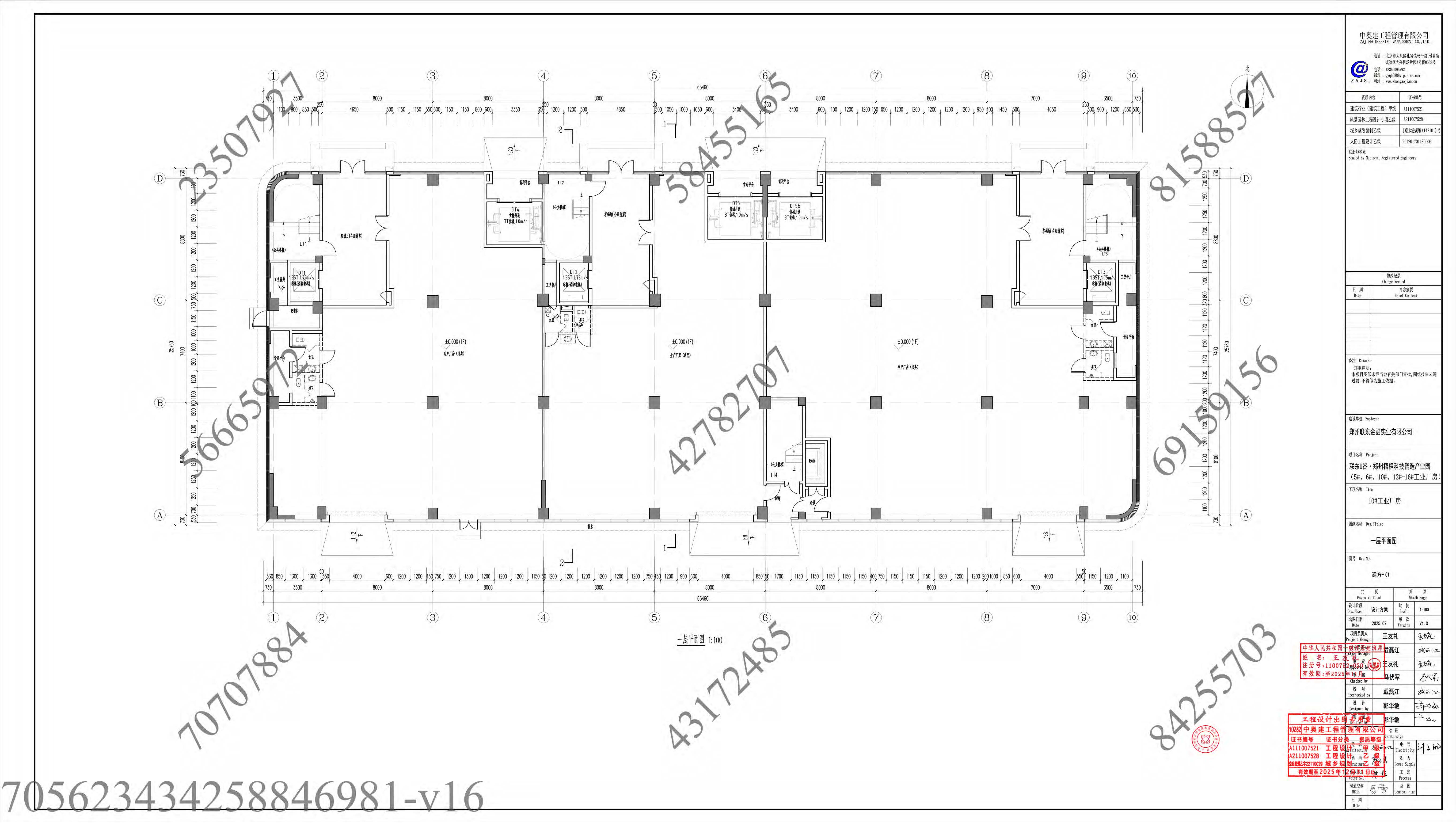
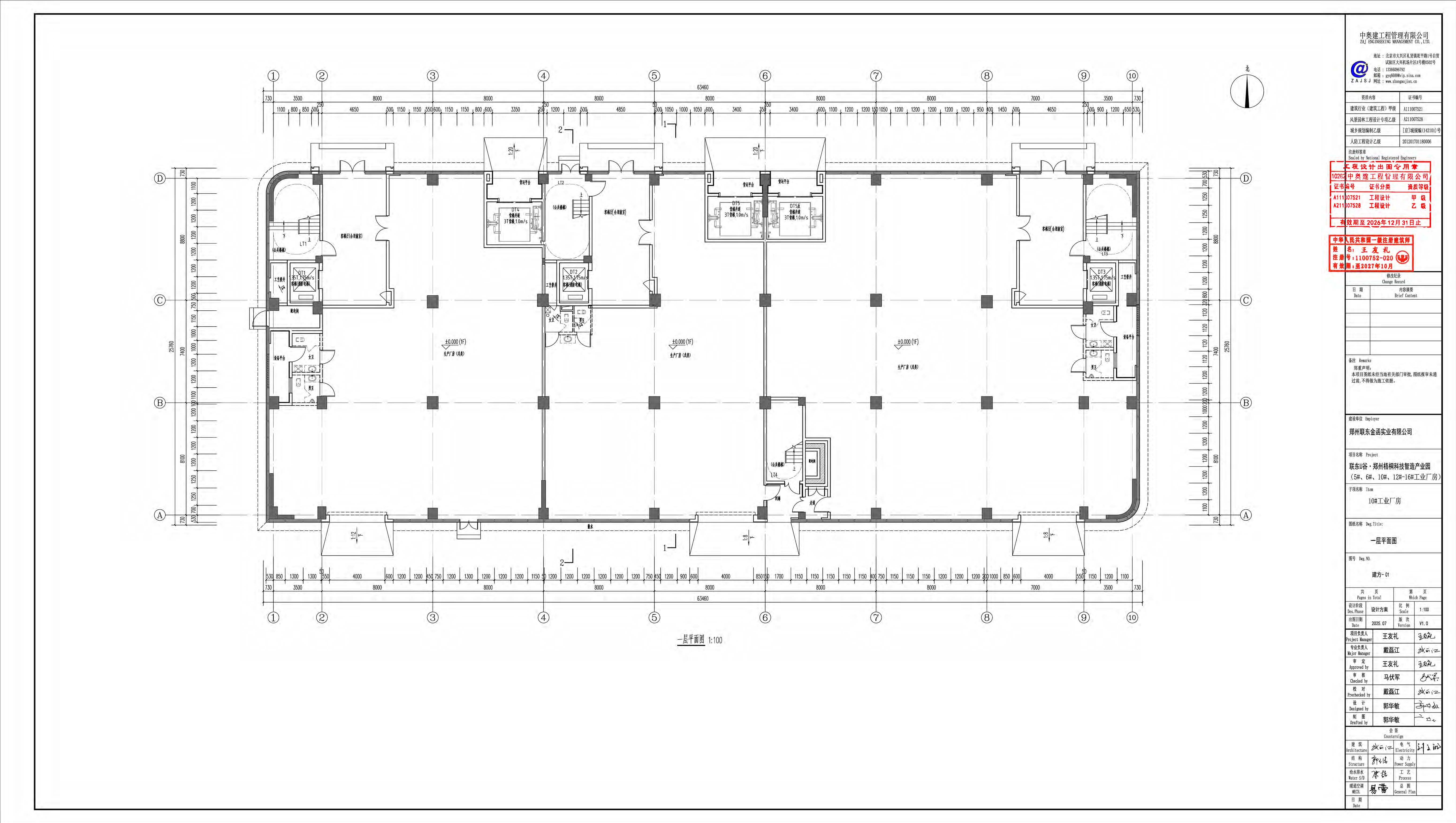
调整内容: | 本次主要调整10#厂房单体设计方案,调整内容如下: 1、10#工业厂房一层平面图4轴交D轴增加楼梯间对外疏散门及台阶。 2、10#工业厂房10~1轴立面图4轴到5轴之间增加楼梯对外疏散门及台阶。 |
备注 | 其他调整内容及未尽事项,详见公示图纸。 |
附图: | 调整前一层平面图、调整后一层平面图、调整前立面图、调整后立面图 |
附加说明: | 查询详细内容,请出示身份证明,到我局办理相关手续后查询。依据《城乡规划法》、《行政许可法》等有关法律法规,特此公示。如有意见和建议,请于公示时间内书面向我局反馈。 |
调整前10#工业厂房一层平面图:

调整后10#工业厂房一层平面图:

调整前10#工业厂房立面图:

调整后10#工业厂房立面图:
