项目名称: | 超硬3C材料厂房扩建项目总平面图调整公告 |
公示公告类型: | 其他 |
建设/用地单位: | 河南明晟新材料科技有限公司 |
用地类别: | 城市建设用地 |
用地位置: | 高新区金盏街北、金柏路西 |
公示期限: | 10个工作日 |
公示日期: | 2026年3月20日 |
截止日期: | 2026年4月2日 |
经办处室单位: | 郑州市自然资源和规划局高新分局 |
经办人: | 蒋振明、王浩 |
咨询电话: | 0371-67998510 |
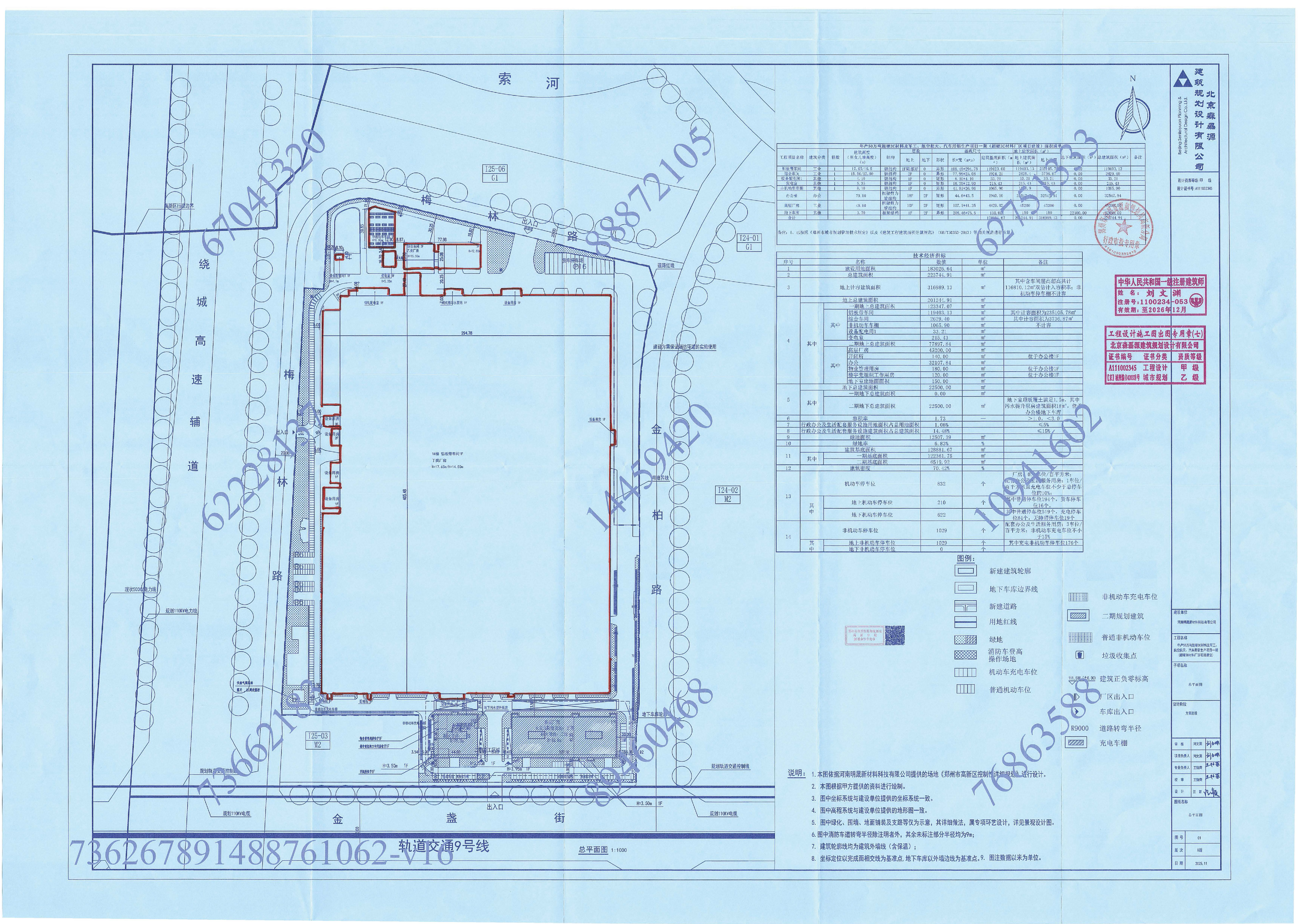
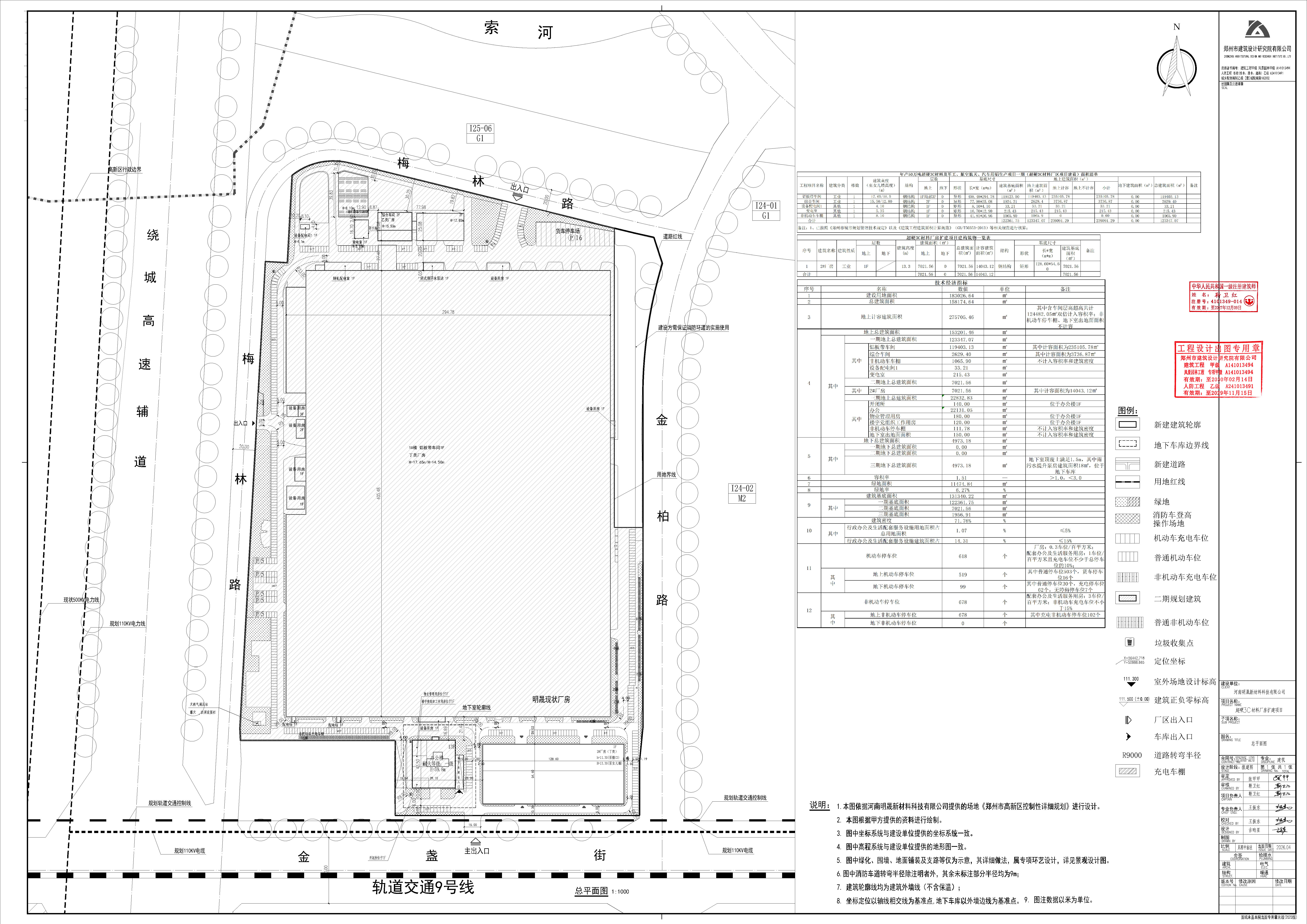
调整内容: | 本次主要调整总平面设计方案,调整内容如下: 1、地上机动车、非机动车车位、绿地、道路规划布局调整。 2、用地东南角原高层厂房调整为单层厂房调整前建筑面积为45200㎡,调整后建筑面积为7021.56㎡;调整前基底面积为4429.82㎡,调整后基底面积为7021.56㎡,调整前建筑高度 49.80m,调整后建筑高度13.3m。 3、调整前办公楼为地上18层,调整后办公楼为地上13层;调整前办公楼地上建筑面积为32547.84㎡,调整后建筑面积为22571.05㎡,调整前建筑高度79.8m,调整后建筑高度59.8m。 4、新增非机动车停车棚111.78㎡。 5、调整前地下建筑面积为22500㎡,调整后地下建筑面积为4973.18㎡。 6、调整前计容建筑面积316989.13㎡,调整后计容建筑面积275705.46㎡。 7、调整前容积率为1.73,调整后容积率为1.51。 8、调整前基底面积128881.67㎡,调整后基底面积131340.22㎡。 9、调整前建筑密度为70.42%,调整后建筑密度为71.76%。 10、调整前绿地面积12507.39㎡,调整后绿地面积11474.84㎡。 11、调整前绿地率为6.83%,调整后绿地率为6.27%。 12、取消原南侧出入口处门卫房。 13、调整前机动车停车位为832个,调整后机动车停车位为618个。 14、调整前非机动车停车位为1029个,调整后非机动车停车位为678个。 |
备注 | 其他调整内容及未尽事项,详见公示图纸。 |
附图: | 调整前总平面图、调整后总平面图、调整前鸟瞰图、调整后鸟瞰图 |
附加说明: | 查询详细内容,请出示身份证明,到我局办理相关手续后查询。依据《城乡规划法》、《行政许可法》等有关法律法规,特此公示。如有意见和建议,请于公示时间内书面向我局反馈。 |
调整前总平面图:

调整后总平面图:

调整前鸟瞰图:

调整后鸟瞰图:

效果图仅为展示本地块,周边地块仅供参考