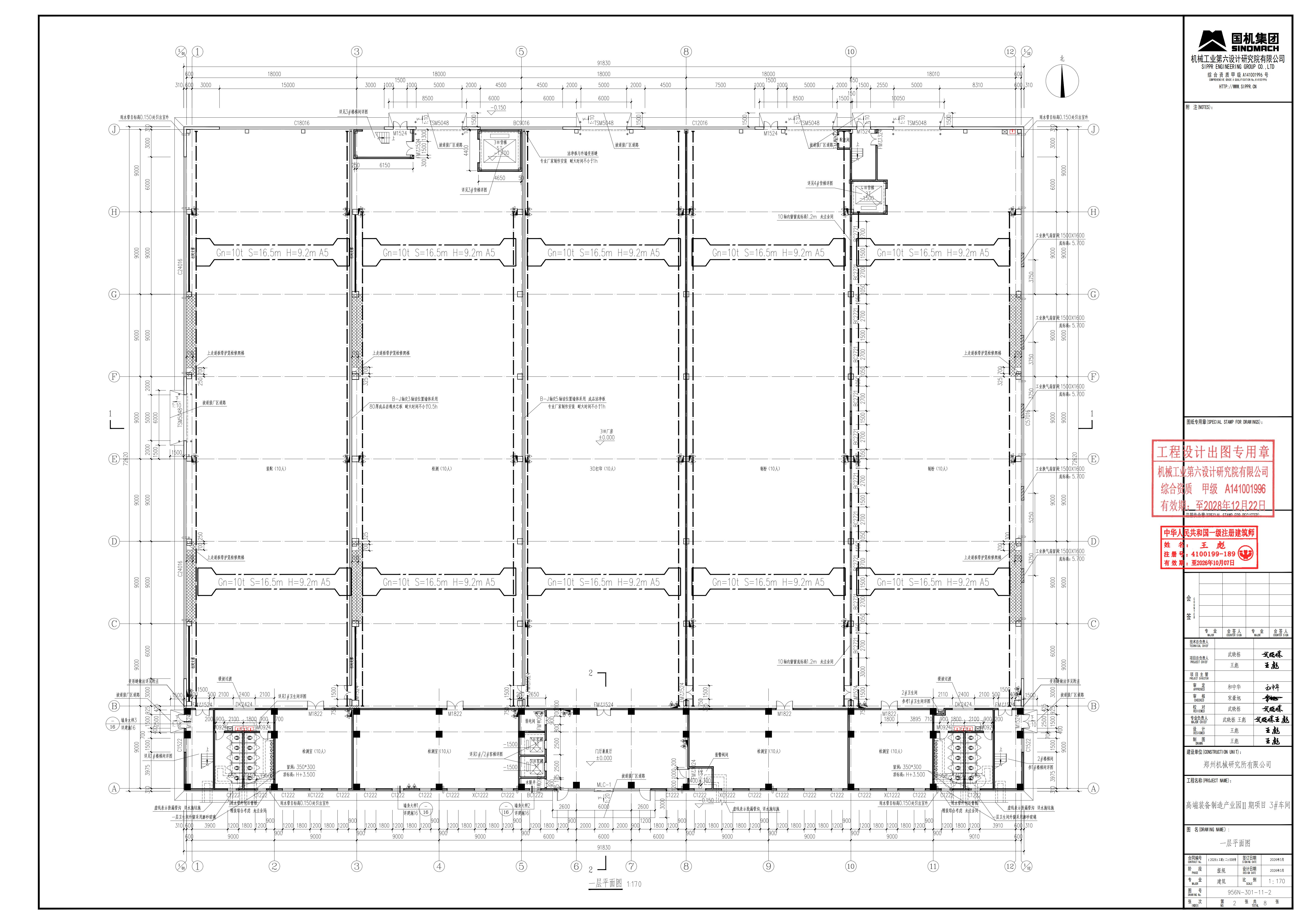
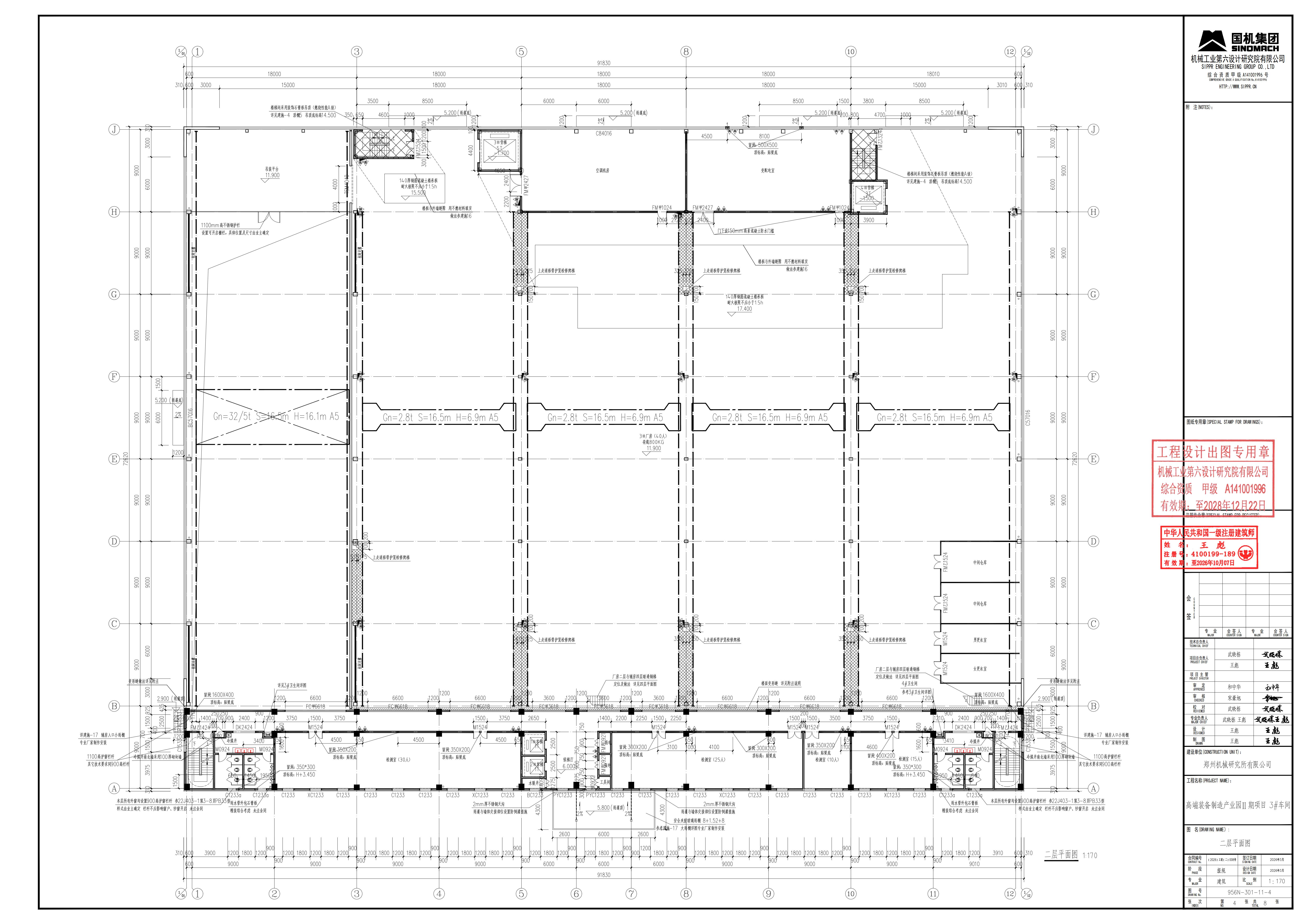
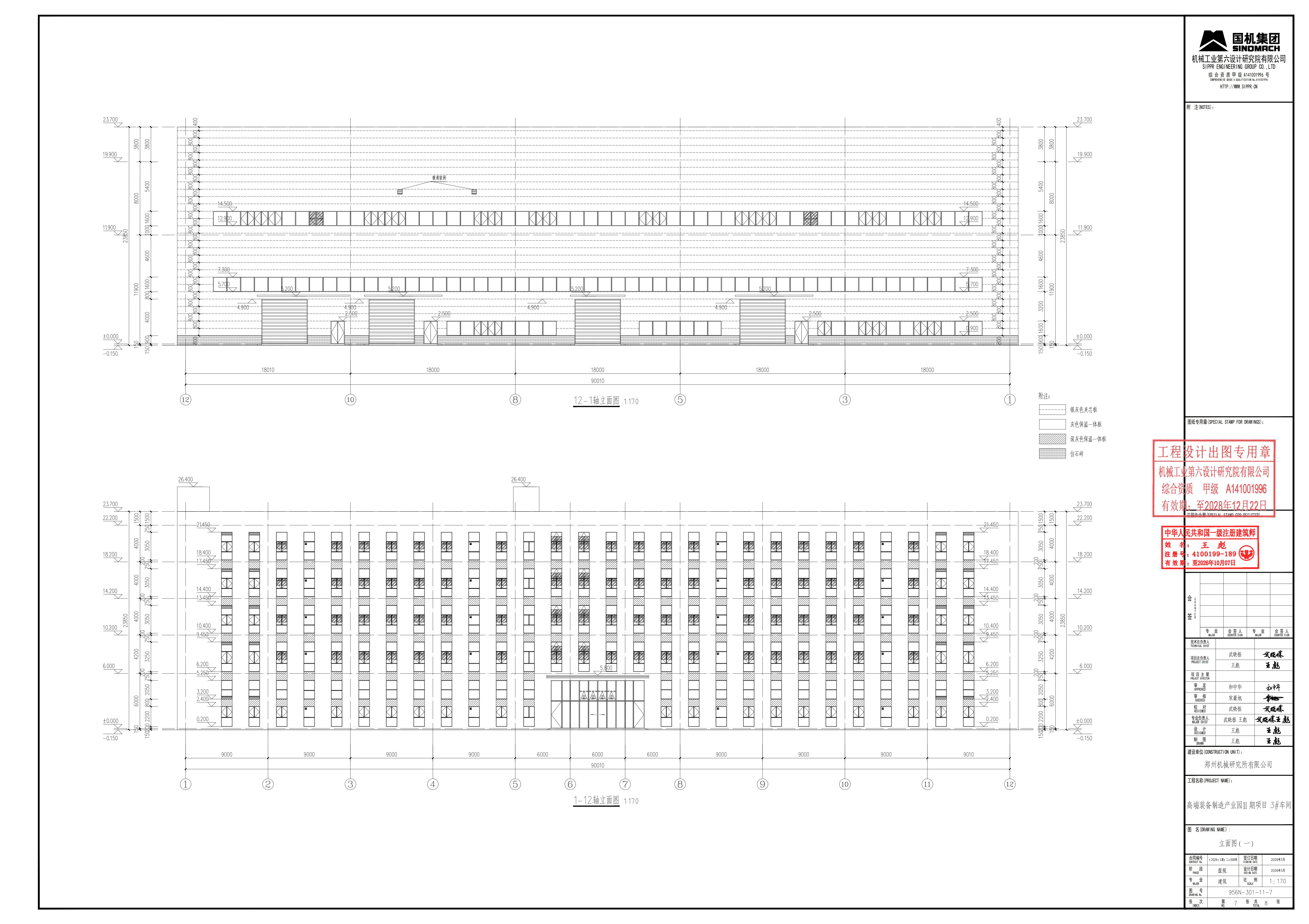
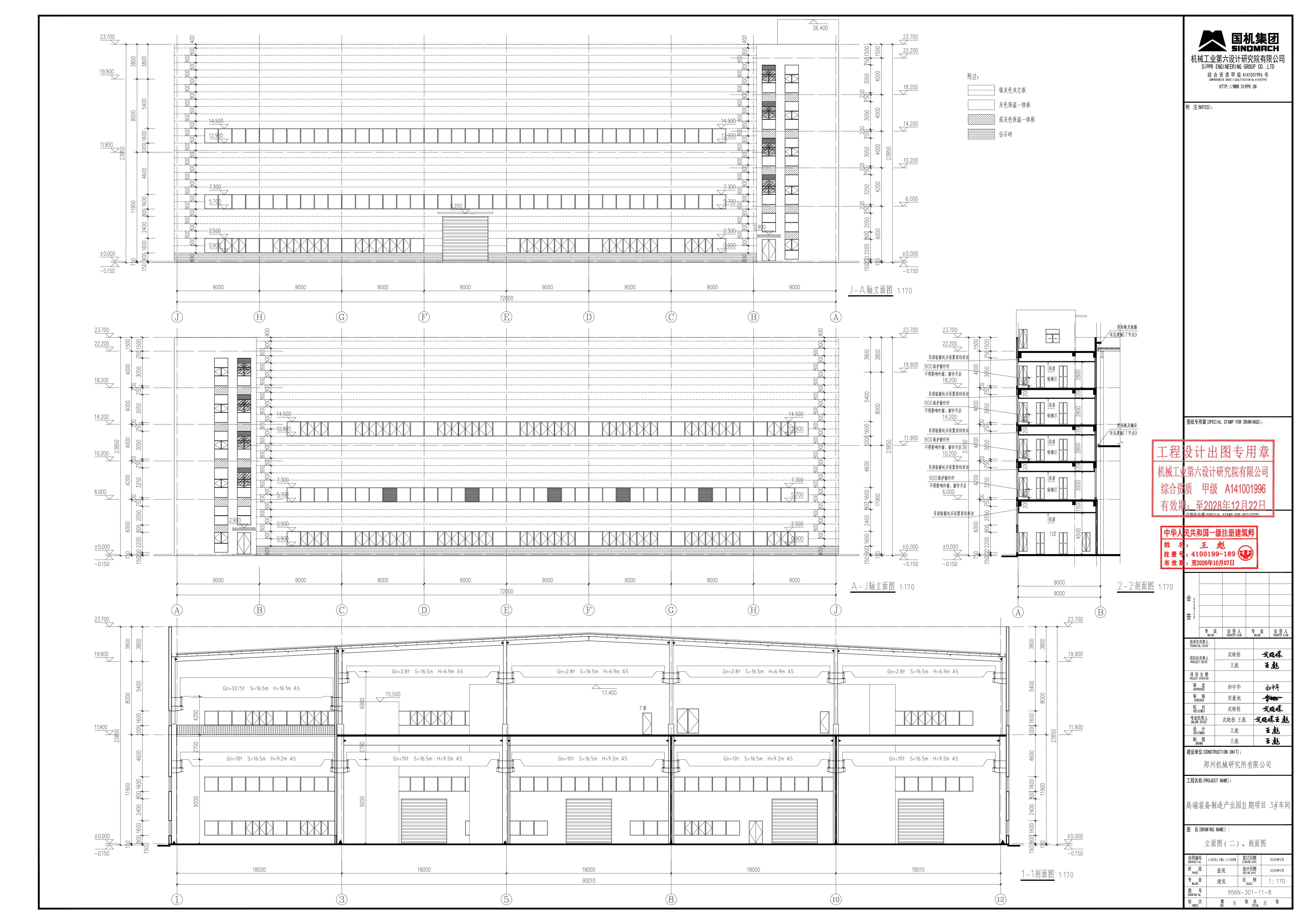
项目名称: | 郑州机械研究所有限公司高端装备制造产业园II期 |
公示公告类型: | 其他 |
建设/用地单位: | 中国机械总院集团郑州机械研究所有限公司 |
用地类别: | 城市建设用地 |
用地位置: | 高新区花柏路东、金盏街南、翠柏路西、绿梅街北 |
公示期限: | 10个工作日 |
公示日期: | 2026年3月23日 |
截止日期: | 2026年4月3日 |
经办处室单位: | 郑州市自然资源和规划局高新分局 |
咨询电话: | 0371-67998510 |
附加说明: | 查询详细内容,请出示身份证明,到我局办理相关手续后查询。依据《城乡规划法》、《行政许可法》等有关法律法规,特此公示。如有意见和建议,请于公示时间内向我局反馈。 |






效果图仅为展示本地块,周边地块仅供参考