云智科技园项目 | |
公示公告类型: | 其他 |
建设/用地单位: | 河南创新数智产业园区建设有限公司 |
用地类别: | 城市建设用地 |
用地位置: | 高新区药厂街北、金梭路西 |
公示期限: | 10个工作日 |
公示日期: | 2026年4月10日 |
截止日期: | 2026年4月23日 |
经办处室单位: | 郑州市自然资源和规划局高新分局 |
咨询电话: | 0371-67998510 |
调整内容: | 主要修改内容如下:
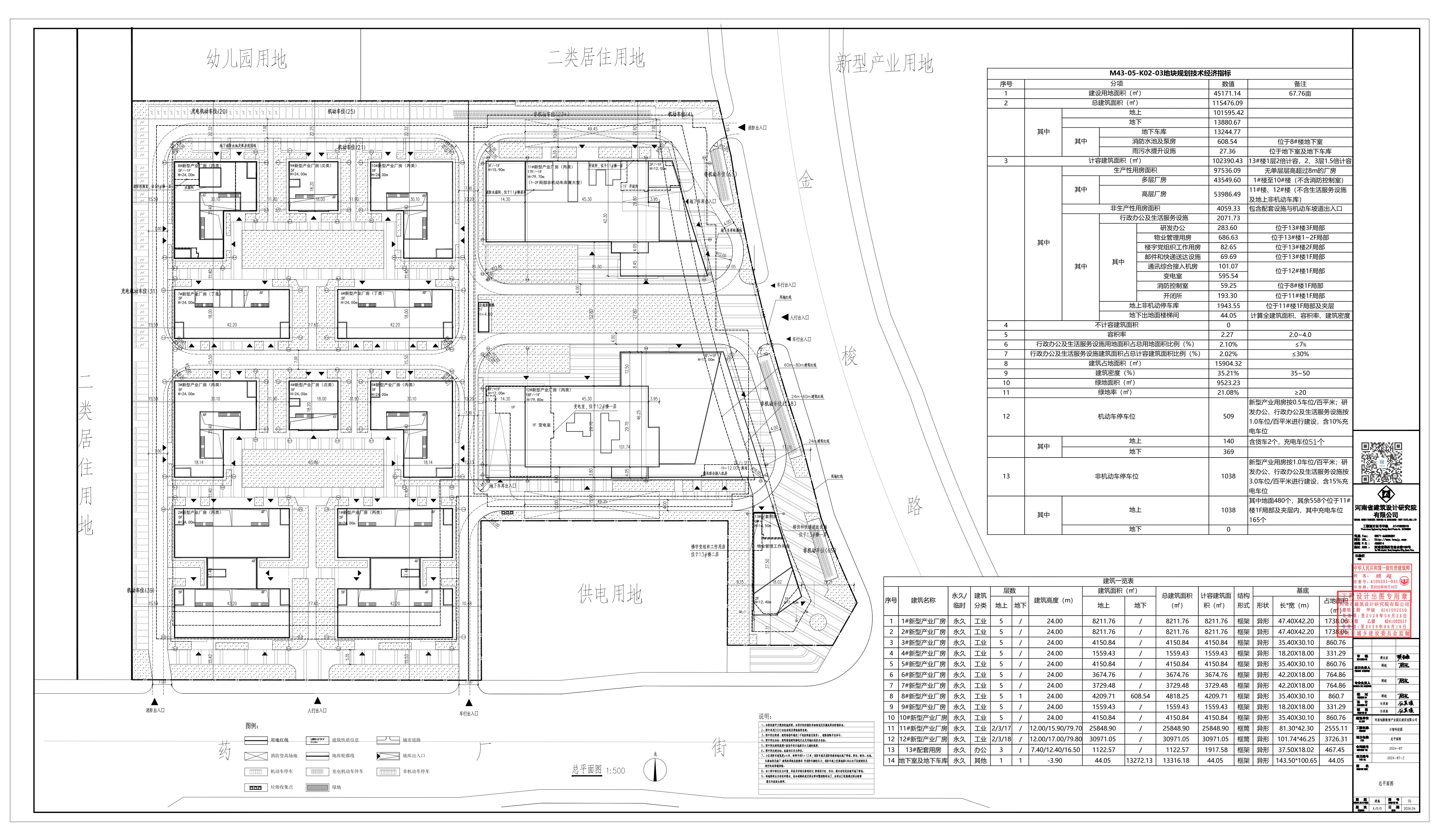
(一)总平面图调整: 1.调整前总建筑面积114999.45平方米,调整后总建筑面积115476.09平方米。 2.调整前地上建筑面积101122.50平方米,调整后地上建筑面积101595.42平方米。 3.调整前地下建筑面积13876.95平方米,调整后地下建筑面积13880.67平方米。 4.调整前消防水池及泵房建筑面积604.82平方米,调整后消防水池及泵房建筑面积608.54平方米。 5.调整前计容建筑面积由101917.51平方米,其中生产性用房面积97128.54平方米,多层厂房面积43582.79平方米,高层厂房面积53545.75平方米,非生产性用房面积3993.96平方米。调整后计容建筑面积102390.43平方米,其中生产性用房面积97536.09平方米;多层厂房面积43549.60平方米,高层厂房面积53986.49平方米,非生产性用房面积4059.33平方米。 6.调整前配套面积:(1)行政办公及生活服务设施面积2006.36平方米;(2)变电室面积528.18平方米;(3)消防控制室面积61.24平方米;(4)行政办公及生活服务设施用地面积占总用地面积比例1.96%;行政办公及生活服务设施建筑面积占总计容建筑面积比例1.97%。调整后配套面积:(1)行政办公及生活服务设施面积2071.73平方米;(2)变电室面积595.54平方米;(3)消防控制室面积59.25平方米;(4)行政办公及生活服务设施用地面积占总用地面积比例2.10%;行政办公及生活服务设施建筑面积占总计容建筑面积比例2.02%。 7.调整前容积率2.26,调整后容积率2.27。 8.调整前建筑占地面积15921.43平方米,调整后建筑占地面积15904.32平方米。 9.调整前建筑密度35.25%,调整后建筑密度35.21%。 10.调整前机动车停车位507个,其中地上停车位138个;非机动车停车位1034个。调整后机动车停车位509个,其中地上停车位140个;非机动车停车位1038个。 (二)单体图调整: 1.3#新型产业厂房、5#新型产业厂房、7#新型产业厂房、8#新型产业厂房、10#新型产业厂房、11#新型产业厂房、12新型产业厂房单体平面布局调整: 2.7#新型产业厂房调整前建筑面积3674.76平方米,调整后建筑面积3729.48平方米。 3.8#新型产业厂房调整前建筑面积4904.43平方米,调整后建筑面积4818.25平方米。 4.11#新型产业厂房调整前建筑面积25610.99平方米,调整后建筑面积25848.90平方米。 5.12#新型产业厂房调整前建筑面积30700.86平方米,调整后建筑面积30971.05平方米。
|
备注 | 其他调整内容及未尽事项,详见公示图纸。 |
附图: | 调整前总平面图,调整后总平面图。 |
附加说明: | 查询详细内容,请出示身份证明,到我局办理相关手续后查询。依据《城乡规划法》、《行政许可法》等有关法律法规,特此公示。如有意见和建议,请于公示时间内书面向我局反馈。 |
调整前总平面图:

调整后总平面图:
